

Residenz Scheffel-Villa Bad-Dürrheim
Leben wo andere Kur-Urlaub machen!
Leben im Kurpark mit Weitblick ins Grüne.
Auf dem herrlich eingewachsenen Grundstück der ehem. Scheffel-Villa ist eine aussergewöhnliche Wohnanlage entstanden. Sie möchten großzügig wohnen und nicht den Verpflichtungen eines Hauses nachkommen? Die Residenz Scheffel-Villa bieten Ihnen die Lösung.
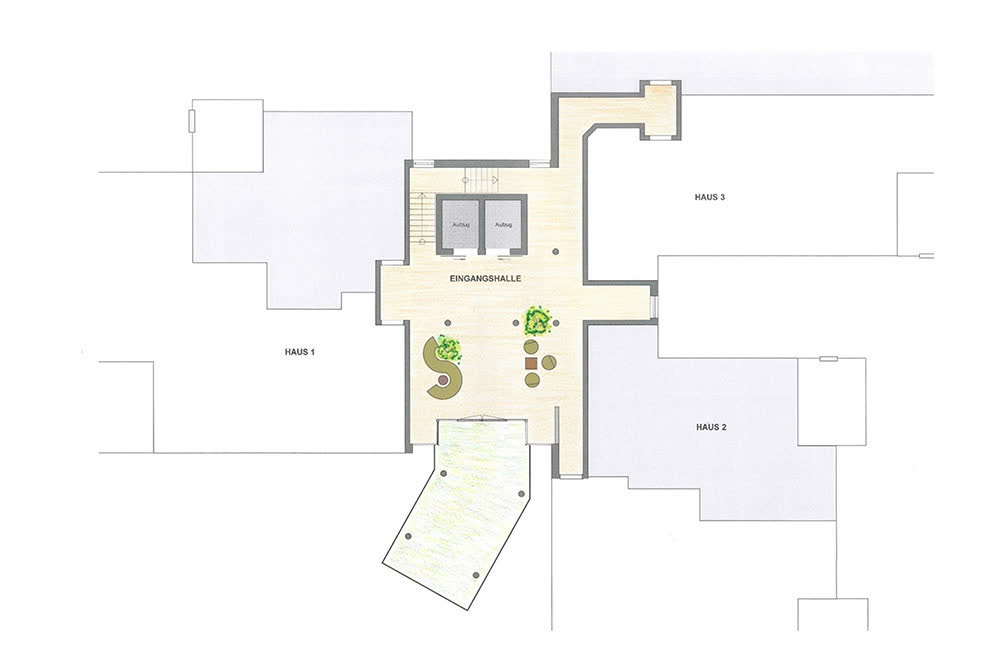
Die Anlage besteht aus drei Baukörpern, die um einen zentralen Erschließungstrakt gruppiert sind. Über einen hotelartig überdachten Eingangsbereich gelangt man in eine weitläufige Empfangshalle mit Loungecharakter. Großzügige und durchdachten Grundrisse, hochwertige Ausstattung, Smart-Home-System, barrierefreie Aufzüge uvm. bieten eine ansprechende Alternative zum Einfamilien-Wohnhaus. Die Residenz verfügt über eine moderne Architektur. Die einzelnen Gebäude nehmen je 6 Wohneinheiten verteilt auf 3 Ebenen zzgl. einem Penthouse mit Roofgarden auf.
Die Baukörper sind gegliedert, um möglichst viel Verglasung und somit die Einbindung ins "Grün" zu gewährleisten. Die Wohnungen haben verschiedenen Größen von ca. 78m² bis ca. 185 m² reine Wohnfläche. Jede Wohnung verfügt über einen großzügigen Balkon oder eine Terrasse.
Im Untergeschoss liegen die Abstellräume, Wasch- und Trockenraum, Heiz- und Elektroraum, ebenso ein Raum für Kinderwagen und Gehhilfen direkt zur Tiefgarage angrenzend. Alle Parkplätze sind größer als gefordert! Breit genug um bequem Ein- und Auszusteigen! Es gibt 29 Tiefgaragenstellplätze (davon sind 3 Stellplätze Behindertenparkplätze) und 6 Aussenstellplätze. Für Fahrradstellplätze ist in einem separaten Raum gesorgt.
Neugierig geworden?
Highlights des Objekts
- der heilklimatische Kurort Bad Dürrheim
- zentral im Kurpark
- einzigartig exponierte Lage
- moderne Architektur - massiv gebaut
- parkähnliche Grünanlagen
- hotelartige, überdachte Zufahrt
- exklusives Eingangsfoyer
- große überdachte Terrassen und Balkone
- helle und lichtdurchflutete Räume
- optimiertes Energiekonzept
Hochwertige Ausstattungen
- übergroße Tiefgaragenstellplätze
- Penthäuser mit Roofgarden
- barrierefreie Aufzüge
- Fußbodenheizung
- Parkettböden
- Designbäder
- Smart-Home-System
- atmungsaktiver Rotkalk-Innenputz
- Glasschiebetüren und -elemente
Oscar Wilde














